Desain Kost 2 Lantai di Daerah Makam Haji Kartosuro
Project Description
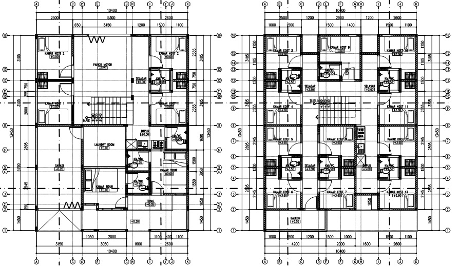
Desain kost 2 lantai ini merupakan salah satu project kost yang sudah terselesaikan oleh Tim Niscaya Arsitek. Berikut merupakan kondisi eksisting site.

Hasil Desain Kost 2 Lantai

Bangunan ini didesain dengan menggunakan konsep tropis-modern. Konsep ini diaplikasikan guna merespon kondisi sekitar site. Dapat dilihat pada desain fasadnya, material yang kami pilih cenderung berwarna natural. Beberapa material yang kami aplikasikan antara lain batu alam dan conwood yang memiliki finish akhir menyerupai kayu.



Ingin membangun kost 2 lantai? Segera konsultasikan dengan Tim Niscaya Arsitek, klik di sini !
